О проекте

Клубный дом на Пресне с охраняемой территорией

Современные системы и коммуникации
Собственная парковка

Тихое, зелёное место в самом центре Москвы

01

Дом на Предтеченском

* Общая площадь 1750 кв.м.
* 5 этажей, мансардный и подземный уровни
* Площадь квартир 1108 кв.м
* Площадь апартаментов 120 кв.м
* Приточно-вытяжная вентиляция
* Парковка на 14 м/м
* Зарядная станция для электромобилей
* Дизайн интерьера мест общего пользования

Удобное расположение
• 700 м до Зоопарка
• 1 км до Москва Сити
• м. Улица 1905 года 640 м
• м. Краснопресненская 900 м
• 4 школы и секции
• Торговые центры
• 5 парков в округе
• Кафе и рестораны
• Театры и музеи
02
Продуманное современное пространство в архитектуре 19 века
Реконструированное по всем современным требованиям
03
Здание 1897 года
Историческая преемственность с чертами комфортного жилья представительского формата по проекту Архитектурного бюро Карлсона.
Авторское общее пространство > 100 м²
Дизайн общих зон выполнен по эксклюзивному проекту, с использованием натурального мрамора. Плиточное панно расписано вручную.
04
04
Авторское общее пространство > 100 м²
Дизайн общих зон выполнен по эксклюзивному проекту, с использованием натурального мрамора. Плиточное панно расписано вручную.
05
Охраняемая парковка
На 14 парковочных мест с зарядной станцией для электромобилей и прямым входом в фойе на первом этаже.
06
Окна выходят на спокойную улицу
Тихий район старой Москвы с деревьями и небольшим сквером. Нет шумного потока машин или пешеходов.
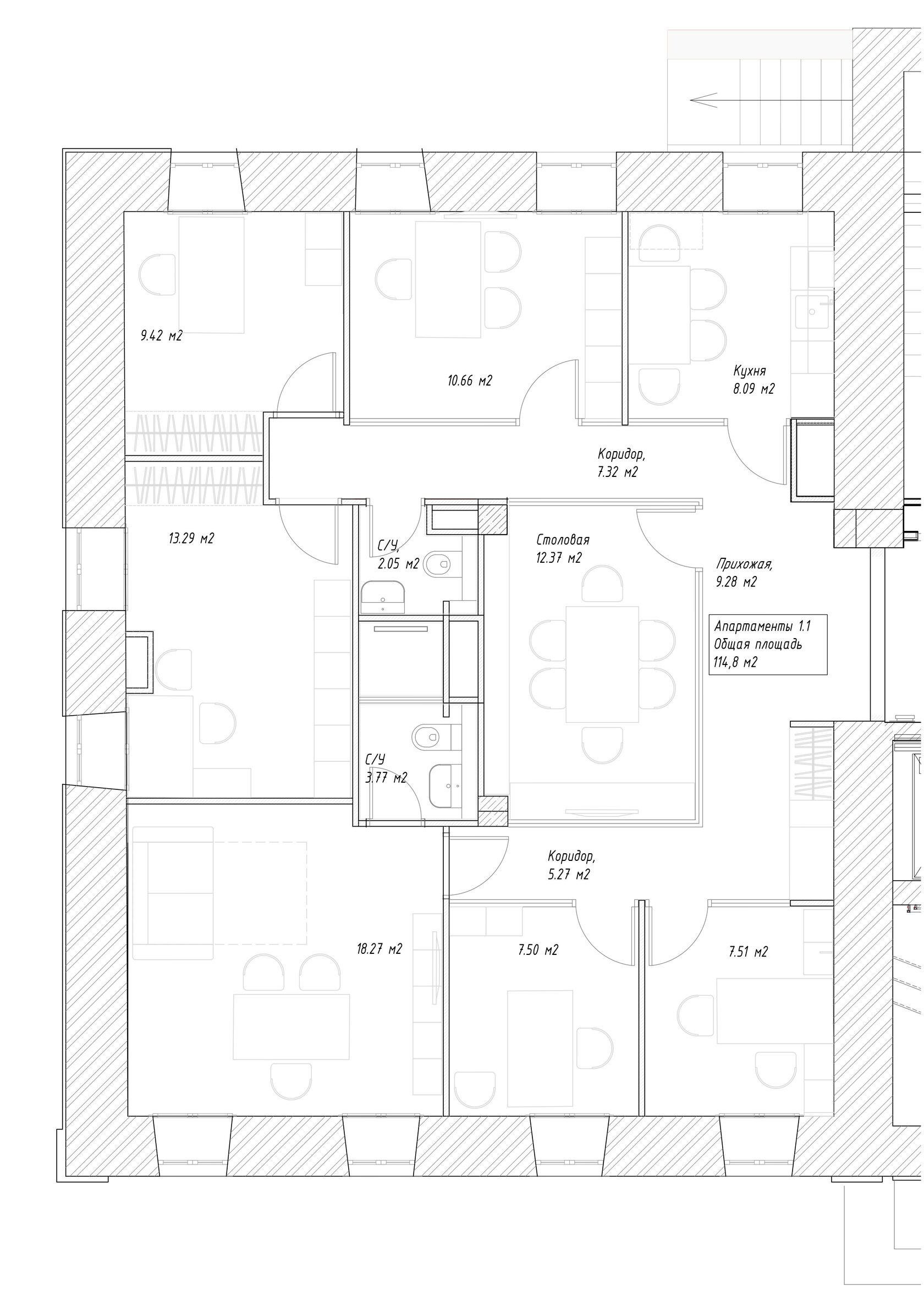
Планировочные решения дома
Выберите этаж.
СМОТРЕТЬ ПЛАНИРОВКУ
СМОТРЕТЬ ПЛАНИРОВКУ
СМОТРЕТЬ ПЛАНИРОВКУ
СМОТРЕТЬ ПЛАНИРОВКУ
СМОТРЕТЬ ПЛАНИРОВКУ
СМОТРЕТЬ ПЛАНИРОВКУ
СМОТРЕТЬ ПЛАНИРОВКУ
СМОТРЕТЬ ПЛАНИРОВКУ
СМОТРЕТЬ ПЛАНИРОВКУ
СМОТРЕТЬ ПЛАНИРОВКУ
СМОТРЕТЬ ПЛАНИРОВКУ
Всё, что нужно для жизни— рядом
№1
Прогуляться и отдохнуть в парке
Краснопресненский парк, Московский Зоопарк, Детский парк, Парк Декабрьского восстания и Краснопресненская набережная в пешей доступности.
№2
Дать хорошее образование ребёнку
Одни из лучших школ Москвы рядом с домом: №1241, «Виктория», №1232, №56. Частные сады и школы. Творческие, развивающие и спортивные центры.
№3
Устроить шопинг, поужинать или заняться спортом
Торговые площадки «Москва-Сити», Европейские, рестораны, кофейни, фитнес-клубы и катки.
№4
Составить культурную программу
Дом Правительства, Музей Востока, Государственный центр современного искусства, старинные храмы, 26 театров – МХАТ им. Горького, театр Сатиры, театры им. Пушкина и Маяковского
Все атрибуты современного жилья для комфортной жизни
• Закрытая парковка
• Круглосуточный ресепшн
• Видеонаблюдение
• Система кондиционирования и вентиляции
• Современная система отопления
• Резервная система подогрева воды
Записаться на просмотр
Мы готовы ответить на все вопросы о доме
• Система кондиционирования и вентиляции

• Современная система отопления

• Резервная система подогрева воды
© 2022, Дом на Предтеченском
Made on
Tilda